heroal W 72 RL

MA000129
Système de fenêtre à contour extérieur arrondi
Avec son design classique aux bords légèrement arrondis (contour Roundline), le système de fenêtre heroal W 72 RL s'intègre parfaitement au style des façades historiques. Ainsi, il est la solution idéale pour la réhabilitation de bâtiments anciens ou historiques destinés à abriter des logements ou des commerces.

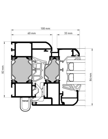
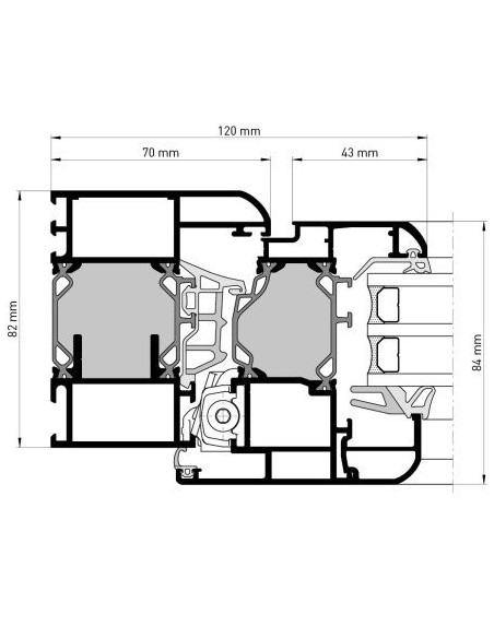
Dimensions du système

Profondeur des profilés [mm]

Profilés de cadre
82
Profilés de porte
84
Profilés intercalaires
81

Largeur visible des profilés [mm]

Profilés de cadre
60 - 70
Profilés de porte
33 - 43
Profilés intercalaires
74 - 94

Variantes de profilés de battants

Rainure de ferrure de la tringle de commande [SBN]
Rainure de ferrure en plastique [KBN]

Propriétés

Épaisseur du verre / du panneau [mm]
59
Poids max. des portes [kg]
300
Hauteurs max. de portes [mm]
2.400
Portance des dispositifs de sécurité
3 Résistance aux chocs
1 Forces de manœuvre

* Valeur Uw selon DIN EN ISO 10077-1 ; calculée sur un élément de 1230 x 1480 mm ; largeur visible de profilé standard

!) Autorisations spéciales en fonction de l’application, délivrées par heroal en cas d’éléments surdimensionnés

9A Étanchéité à la pluie battante
2 Fonction continue
1-4 Isolation phonique
RC 3 Résistance à l’effraction !) Autorisations spéciales en fonction de l’application, délivrées par heroal en cas d’éléments surdimensionnés
>0,84* Isolation thermique [Uw en W/m2K]
4 Perméabilité à l’air
C5/B5 Résistance au vent
Rigidité mécanique
1,3/120 Isolation thermique [Uf en W/m2K]
pas de commentaires