Le système de fenêtre heroal W 72 i tisse la trame architecturale avec des largeurs visibles filigranes. heroal W 72 i est synonyme de transparence maximale, d'isolation thermique et de design élégant sans battants ni parcloses visibles. Le système de fenêtre a ouvrant caché est polyvalent, par exemple sous forme d'élément inséré à la façade. La combinaison à des ferrures invisibles se solde par un design élégant.
Dimensions du système
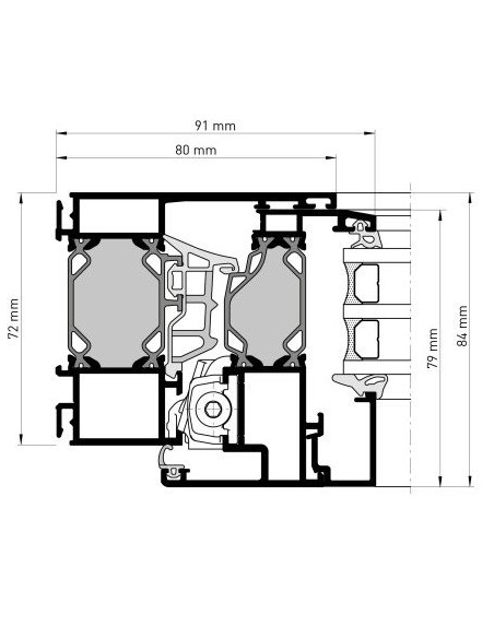
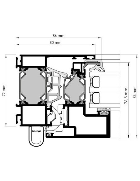
Profondeur des profilés [mm]
- Profilés de cadre 72
- Profilés de porte 76,5/79
- Profilés intercalaires 72
Largeur visible des profilés [mm]
- Profilés de cadre 70 - 120
- Profilés de porte verdeckt
- Profilés intercalaires 114 - 194
Variantes de profilés de battants
- Rainure de ferrure de la tringle de commande [SBN] •
- Rainure de ferrure en plastique [KBN] •
Propriétés
- Épaisseur du verre / du panneau [mm] 48
- Poids max. des portes [kg] 130
- Hauteurs max. de portes [mm] 2.400

4 Perméabilité à l’air

Fonction continue

Résistance aux chocs

RC 2 Résistance à l’effraction

1,5/95 Isolation thermique [Uf en W/m2K]

Rigidité mécanique

9A Étanchéité à la pluie battante

1-5 Isolation phonique

1 Forces de manœuvre

C5/B5 Résistance au vent

>0,85* Isolation thermique [Uw en W/m2K]

✓ Portance des dispositifs de sécurité
* Valeur Uw selon DIN EN ISO 10077-1 ; calculée sur un élément de 1230 x 1480 mm ; largeur visible de profilé standard
!) Autorisations spéciales en fonction de l’application, délivrées par heroal en cas d’éléments surdimensionnés
.png)