La fonction d’ouverture vers l’extérieur offre souvent des avantages intéressants : une aération efficace et pas de vantail gênant dans la pièce. Avec ses paumelles invisiblement cachées, WICLINE 65 propose, sous cette configuration, une optique sobre et pure.
PERFORMANCES TECHNIQUES
Performances thermiques :
- Uw jusqu’à 0,94 W/(m²K) avec triple vitrage
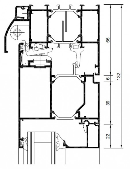
Principe du système :
- Profilés à haute performance thermique avec barette multiple chambres
- Assemblage avec des équerres spécifiques à injection de colle, brevet WICONA
- Prises de volume : jusqu’à 59 mm
- Joint central bi-composant pour étanchéité supérieure
- Fixes latéraux sans dormant supplémentaire
- Dormant pour intégration dans un mur-rideau
Quincaillerie :
- Poids max. par vantail : 100 kg
- Dimensions max. : L 1.200 x H 2.100 mm ou L 2.100 x H 1.200 mm
- Boîtier encastré
Finitions :
- Anodisée Qualanod label AWWAA.EURAS c
- Thermolaquée Qualicoat label Qualité MARINE
- Thermolaquée Bicoloration label Qualité MARINE
- Finitions WICCOLOR brillance 30 % ou satinées
.png)
.png)