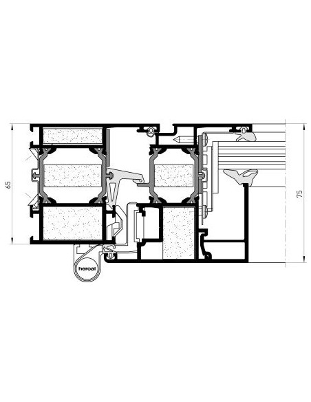
Dimensions du système
Profondeur des profilés [mm]
- Profilés de cadre 65
- Profilés de porte 75
- Profilés intercalaires 65
Largeur visible des profilés [mm]
- Profilés de cadre 60 - 154
- Profilés de porte 38 - 95
- Profilés intercalaires 84 - 254
Variantes de profilés de battants
- Rainure de ferrure de la tringle de commande [SBN] none
- Rainure de ferrure en plastique [KBN] •
Propriétés
- Épaisseur du verre / du panneau [mm] 58
- Poids max. des portes [kg] 130
- Hauteurs max. de portes [mm] 1.955

Fonction continue

Isolation thermique [Uw en W/m2K]

4 Perméabilité à l’air

9A Étanchéité à la pluie battante

Forces de manœuvre

RC 3 Résistance à l’effraction

C5/B5 Résistance au vent

1-5 Isolation phonique

Résistance aux chocs

Portance des dispositifs de sécurité

Rigidité mécanique

Isolation thermique [Uf en W/m2K]
.png)