Your cart
Il n'y a plus d'articles dans votre panier
La haute résistance de l'acier et de l'acier inoxydable prédestine Janisol aux bâtiments très fréquentés, tels que les écoles, hôpitaux, centres sportifs et ouvrages similaires. L'exécution en acier inoxydable donne un éclat particulier et réduit l'entretien au maximum. Les portes Janisol en acier inoxydable s'imposent donc tout naturellement pour les centres commerciaux, les gares, les banques et les hôtels.
Matériaux / Surface
- Acier brut ou bande d'acier galvanisée à chaud, convenant au revêtement par poudre ou au thermolaquage
- Acier inoxydable 1.4401 (AISI 316) ou 1.4301 (AISI 304) (raboté sur demande)
Types d'élément
- Portes à un ou deux vantaux en acier, avec ou sans parties latérales fixes ou impostes, ouvrant vers l'intérieur et vers l'extérieur
- Portes à un ou deux vantaux, en acier inoxydable, avec ou sans parties latérales fixes ou imposte
- Portes tôlées en acier, avec ou sans panneaux en verre
- Portes anti-pince-doigts
Équipement
- Paumelles à souder ou à visser en acier et en acier inoxydable
- Ferme-portes intégrés
- Parcloses design
- Serrures et barres antipanique
Caractéristiques techniques particulières
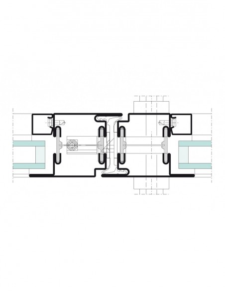
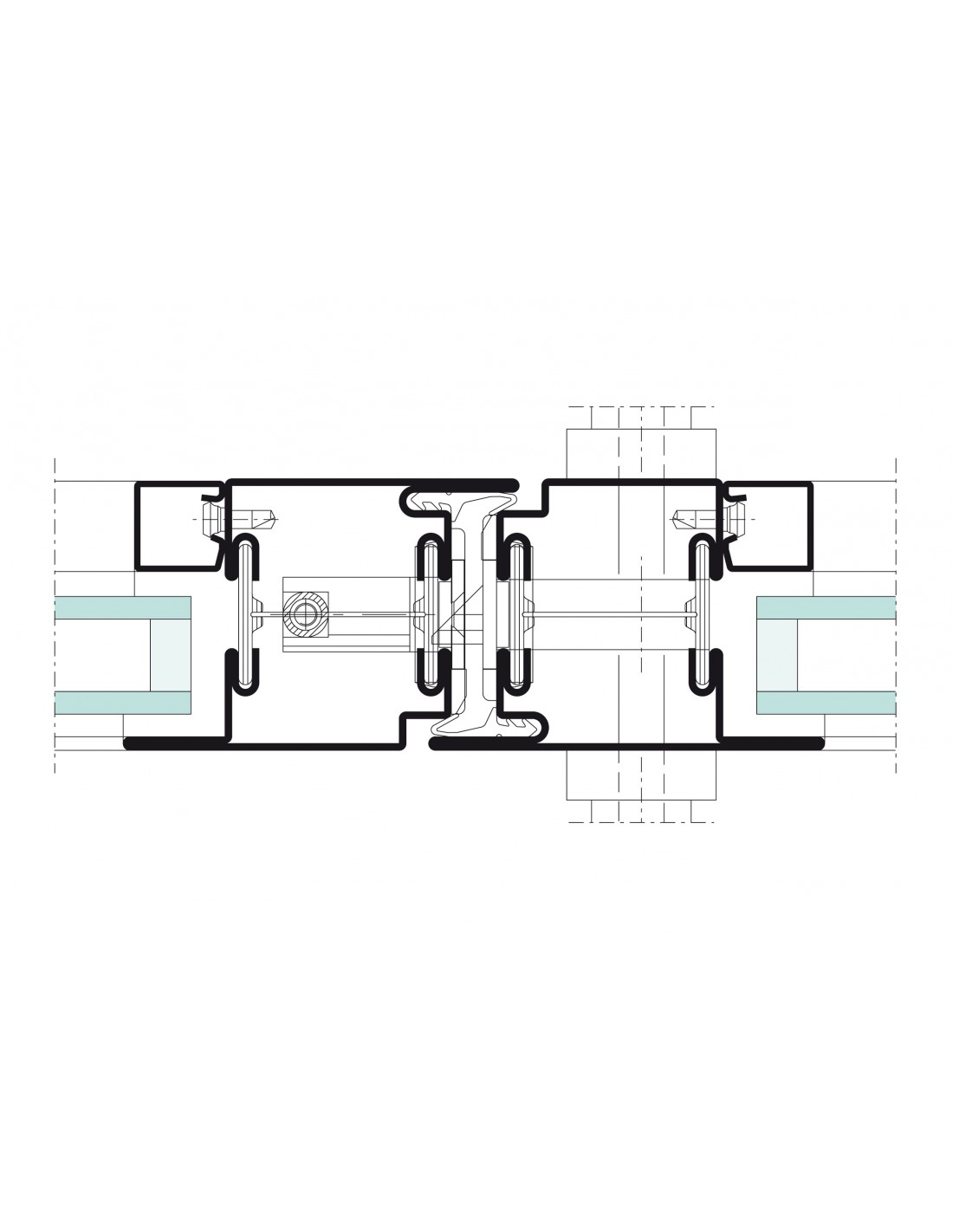
- Profondeur d'encastrement 60 mm
- Géométries spéciales (en demi-rond)
- Porte tout en verre comme solution spéciale
- Portes tournantes en acier ou acier inoxydable comme solution spéciale
- Porte anti-pince-doigts Janisol
Attestations d'essai
- Marquage CE selon norme produit EN 14351-1
- Étanchéité à la pluie battante jusqu'à la classe 4A
- Perméabilité à l'air jusqu'à la classe 4
- Résistance à la charge de vent jusqu'à la classe C4/B4
- Isolement aux bruits aériens jusqu'à Rw 45 db
- Coefficient de transmission thermique UD > 1.5 W/m2K
- Connexion au cisaillement selon EN 14024
- Fonctionnement permanent selon EN 12400 classe 8
- Conception antieffraction selon EN 1627 jusqu'à RC 3
- Résistance aux balles FB 4-6
- TRAV
- Portes de secours selon EN 1125 / EN 179
pas de commentaires
.png)